Startseite
Lahntalbahn
Anschlüsse![]() |
|
|
In den siebziger Jahren waren in Limburg bis zu 232 Triebwagen ETA 150 (Baureihe 515) und 8 Triebwagen ETA 176
(Baureihe 517, die berühmte „Limburger Zigarre“) sowie die 224 zugehörigen Steuerwagen, dazu zeitweilig bis zu
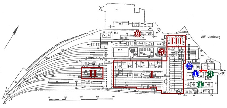
6.000 Bahndienstwagen zu unterhalten. Das Ausbesserungswerk war über viele Jahrzehnte der wichtigste Arbeitgeber in Limburg. 1919 erreichte es mit ca. 3.000 Beschäftigten den höchsten Stand, im Jubiläumsjahr 1987 waren es immerhin noch 750 Bedienstete und über 200 Auszubildende. Doch der „Strukturwandel“ bei der Deutschen Bundesbahn bedrohte bereits in den achtziger Jahren den Bestand des Werks, das nach langem Niedergang schließlich 2002 seine Pforten schließen musste. Heute befindet sich in Teilen des alten Ausbesserungswerks die Werkstatt der DB Regio AG, in den Richthallen I und III aber wurde das Einkaufszentrum „WerkStadt“ eingerichtet. Der Plan rechts zeigt das Ausbesserungswerk im Jubiläumsjahr 1987. Rot umrandet die Richthallen I bis III, zwischen den Hallen I und II befindet sich die große Schiebebühne. Der rote Pfeil ganz rechts markiert die Zufahrtstraße vom Bahnhof her; an dieser gruppieren sich die Verwaltungsgebäude (Nr. 1 und 2) und die Ausbildungswerkstatt (3). Im Osten der markante Bau der Elektrowerkstatt (4), neben den Richthallen I und III das Kesselhaus (5). Im Nordwesten des Geländes (heute etwas verloren im Bereich des Parkdecks) der Betonbunker in Zuckerhutform (6). |
![]() Lageplan des Aw Limburg (Lahn) 1987 |

![]() |
![]() |
![]() |